发布时间:2023-06-30 09:14:51 作 者:袁封雪
NE型板链斗提机是TB型垂直斗式提升机的升级版,其采用先进的板链技术使输送提升更加,且能耗低,使用寿命长??湛诎谆懊挥惺导室庖澹旅嫖颐歉鯪E型板链斗提机的规格型号和具体尺寸参数,用事实说话。



Ne板链提升机共有11种型号:NE15、NE30、NE50、NE150、NE200、NE300、NE400、NE500、NE600、NE800。型号越大,代表的输送产量约高。其输送产量可高达110m³/h,提升量范围为15 ~ 800立方/时,提升高度可达40米??突Э筛葑约菏导市枰渌吞嵘锪狭坷淳龆ㄑ≡窈沃中秃诺腘e板链提升机。
以下是Ne板链提升机的技术参数表:

| 型号 | 提升能力 (m³/h) |
斗速(m/s) | 主轴转数(n/min) | 料 斗 | 链条节距 (mm) |
运行部件重量(Kg/m) | 物料块度(mm) | ||||||
|---|---|---|---|---|---|---|---|---|---|---|---|---|---|
| 容积 (L) |
斗宽 (mm) |
斗距 (mm) |
|||||||||||
| 允许所占百分比% | |||||||||||||
| 10 | 25 | 50 | 75 | 100 | |||||||||
| NE15 | 15 | 约0.5 | 16.54 | 2.5 | 250 | 203.2 | 101.6 | 27.5 | 65 | 50 | 40 | 30 | 25 |
| NE30 | 30 | 约0.5 | 16.54 | 7.8 | 300 | 304.8 | 152.4 | 35 | 90 | 75 | 58 | 47 | 40 |
| NE50 | 60 | 约0.5 | 16.54 | 15.7 | 300 | 304.8 | 152.4 | 64 | 90 | 75 | 58 | 47 | 40 |
| NE100 | 110 | 约0.5 | 14.13 | 35 | 400 | 400 | 200 | 89 | 130 | 105 | 80 | 65 | 55 |
| NE150 | 170 | 约0.5 | 14.13 | 52.2 | 600 | 400 | 200 | 112.5 | 130 | 105 | 80 | 65 | 55 |
| NE200 | 210 | 约0.5 | 10.9 | 84.6 | 600 | 500 | 250 | 134 | 170 | 135 | 100 | 85 | 70 |
| NE300 | 320 | 约0.5 | 10.9 | 127.5 | 700 | 500 | 250 | 188 | 170 | 135 | 100 | 85 | 70 |
| NE400 | 380 | 约0.5 | 8.3 | 182.5 | 700 | 600 | 300 | 205 | 205 | 165 | 125 | 105 | 90 |
| NE500 | 470 | 约0.5 | 7.1 | 260.9 | 700 | 700 | 350 | 223 | 240 | 190 | 145 | 120 | 100 |
| NE600 | 600 | 约0.5 | 7.1 | 330.2 | 800 | 700 | 350 | 350 | 240 | 190 | 145 | 120 | 100 |
| NE800 | 800 | 约0.5 | 6.2 | 501.8 | 800 | 800 | 400 | 313 | 270 | 220 | 165 | 135 | 110 |
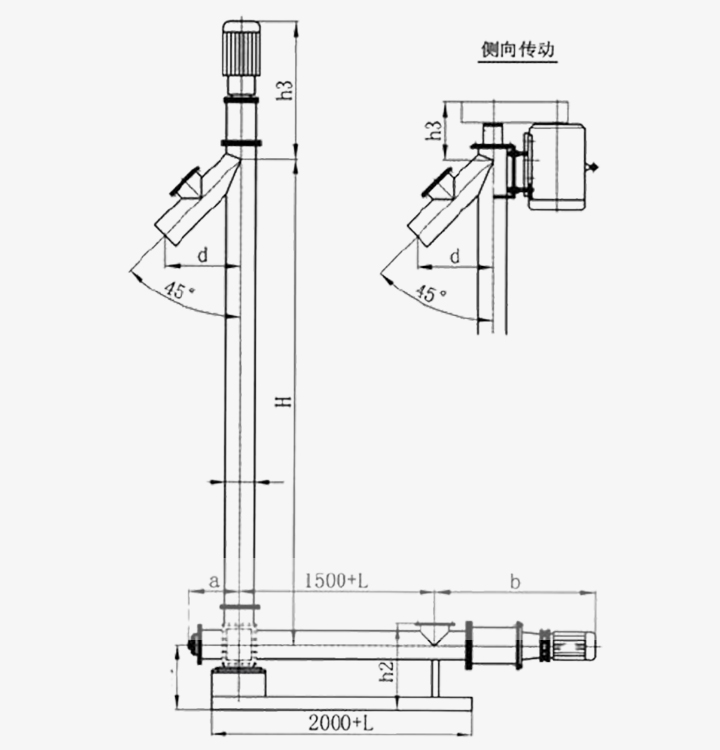
Ne板链提升机分为到单排链和双排链,NE30及以下采用单排链,NE50及以上采用双排链,NE30和NE50节距一样,但是外观不一样,NE50的箱体要长一些。其主要有:内外链板、滚子、套筒、销轴、销钉等配件。板链外板的六孔板对应料斗的安装尺寸。
以下是NE型板链斗提机尺寸表:

| 斗提机型号 | TD100 | TD160 | TD250 | TD315 | TD400 | TD500 | |
| 轮廓高度L | C+1100 | C+1363 | C+1535 | C+1640 | C+1790 | C+1865 | |
| 整机结构 | H H4 S |
C-820 600 200 |
C-930 700 250 |
C-1250 800 250 |
C-1245 850 250 |
C-1500 950 250 |
C-1700 900 250 |
| 料斗 | t b |
200 100 |
350/280 160 |
450/360 250 |
500/400 315 |
560/480 400 |
625/500 500 |
| 地脚孔 | a3 b3 n3 d3 |
200 310 8 Φ18 |
250 400 8 Φ18 |
300 538 8 Φ18 |
300 648 8 Φ18 |
400 768 8 Φ22 |
400 900 8 Φ22 |
| 上、下部机壳及外形轮廓 | H3 H6 A2 A6 A7 B2 B4 B5 |
970 1210 692 776 1050 220 370 330 |
1185 1500 985 996 1235 295 461 475 |
1320 1800 1175 1266 1600 394 596 610 |
1488 1800 1200 1266 1700 440 706 710 |
1500 2000 1350 1558 1980 535 828 835 |
1655 2300 1410 1610 2200 605 980 1000 |
| 中部机壳 | A4 A5 B3 |
776 805 390 |
982 1021 525 |
1152 1302 682 |
1254 1400 794 |
1548 1580 920 |
1570 1630 1040 |
| 卸料口 | H1 A3 a1 a2 a3 b1 b2 b3 n1 d1 |
520 438 334 120 390 224 95 280 12 Φ12 |
630 548 365 150 431 315 150 381 12 Φ12 |
750 713 600 200 676 450 200 526 12 Φ12 |
795 763 560 230 638 560 230 638 12 Φ12 |
850 824 670 295 758 670 295 758 12 Φ14 |
1000 885 700 355 880 780 300 800 12 Φ18 |
标签: NE板链提升机的规格型号和具体尺寸参数介绍 ; NE板链提升机的规格型号; NE板链提升机尺寸参数。
Copyright ? 2008-2024 螺旋输送机厂家-新乡市大汉振动机械有限公司 All Rights Reserved 版权所有
网站备案号:豫ICP备09002479号-47

