发布时间:2025-12-26 15:01:03 作 者:大汉机械

垂直螺旋输送机是一种采用紧凑设计提升散装物料,它是在一个完全封闭的壳体内利用旋转轴来实现这一点,该螺旋轴可以始终如一地向上移动产品。下面将为大家介绍垂直螺旋输送机的优势。
它可以以指定的速率将产品从料斗或料箱中取出到工艺流中,确保自动化、精确的产品部分。

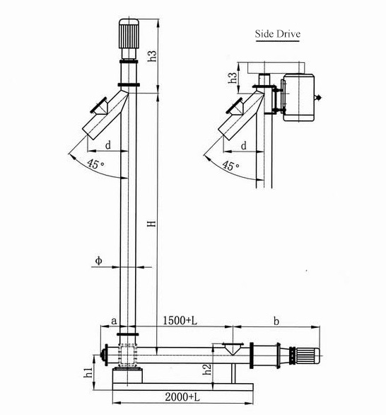
垂直螺旋输送机由水平进料螺旋和垂直螺旋组成,从料仓或料斗或从上游进料装置进料,保证进料有足够的仓压,确保物料能顺利地向上输送,垂直提升高度可达8米。
设计紧凑,因此不会占用大量地面空间,输送机适用于大多数工厂布局。

螺旋输送机是完全封闭的,确保没有产品溢出和浪费,减少粉尘污染,这也可以确保没有污染影响您的员工,从而降低相关的成本。
垂直螺旋组件包括安装在筒仓或料斗下方的水平螺旋喂料器,该立式机器由与进给速率和速度同步的水平进给螺杆进给,螺旋输送机驱动器驱动进给螺杆和垂直螺杆。

您可以用它向任何方向卸料,因此,物料可以通过垂直螺旋中类似于水平输送机上的开口卸料,在某些情况下,通过将排料口连接到弯头或通过其他类型的排料,可以将物料转移到后续输送机或工艺中。
以上是垂直螺旋输送机的6大优势,对于废水设施、木材生产、化学和食品以及采矿作业而言,垂直螺旋输送机具有很高的成本效益,它处理干燥和半流体材料,同时控制缓慢和自由流动的材料,降低成本。
上一篇:链板输送机多少钱一台(附价格表)
下一篇:煤粉绞龙螺旋输送机
Copyright ? 2008-2026 螺旋输送机厂家-新乡市大汉振动机械有限公司 All Rights Reserved 版权所有
网站备案号:豫ICP备09002479号-47

