
小型垂直螺旋输送机主要用于垂直或大倾角输送粉状、粒状、非黏性的容重1.3t/m的干燥物料,小型垂直螺旋输送机输送量可达20立方/时,输送高度在15米之间.
全国统一销售热线
免费获取报价
小型垂直螺旋输送机视频

小型垂直螺旋输送机主要用于垂直或大倾角输送粉状、粒状、非黏性的容重≤1.3t/m的干燥物料,采用不锈钢材质制作而成,输送过程中原料不会受到污染,不会带入任何异物,能使生产过程中实现全封闭自动化。
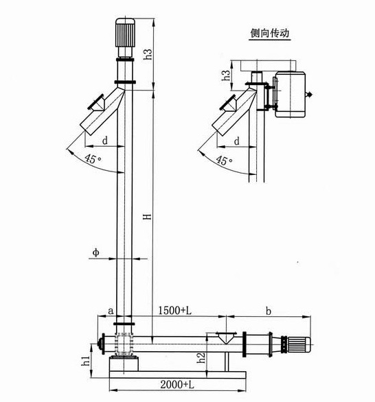
小型垂直螺旋输送机进料口到出料口之间的距离从2.5米到15米,0.5米为一档,可根据用户需要选用。

小型垂直螺旋输送机是由驱动装置(电动机、减速器、联轴节)、螺旋、轴承、料槽、进料口、出料口等几部分组成。

小型垂直螺旋输送机在输送过程中,物料随着螺旋作高速旋转,由于离心力的作用,物料在料槽内形成若干同心圆层,物料的最外层紧贴槽壁。当螺旋转速不高时,物料与螺旋表面的摩擦力大于物料所受到的离心力,物料与螺旋一起做旋转运动,保持相对静态;当螺旋转速较高时,物料所受到的离心力大于物料与螺旋表面的摩擦力.物料向螺旋的外缘移动,对料槽壁产生压力并同时产生摩擦力.只有当这个摩擦力大于物料与螺旋表面之间的摩擦力以及物料重力的分力之和时,物料将与螺旋表面之间发生滑动并沿反方向的螺旋形轨迹上升,即物料被垂直部分的螺旋推送上升,从而达到垂直上升输送的目的。

1、垂直或大倾角输送机,电机安装在主机头部,占地面积小,易于维护。
2、输送量可达20立方/时,输送高度在15米之间,进料口到出料口之间的距离是2.5米-15米,每0.5米一档,可根据用户需要选用。
3、整机体积小、转速高、确??焖倬仁渌汀?/p>
4、出料端设有清扫装置,整机噪声低、适应性强,进出料口位置布置灵活。
5、密封性好、外壳采用无缝钢管制作,端部采用法兰互相连接成一体,刚性好。

小型垂直螺旋输送机适用于垂直或大倾斜角度输送粉状、粒状、非粘性的容重≤1.3t/m3的干燥物料,如粮食,油麸、饲料、化工原料、水泥等。物料温度一般不能超过80°C,垂直螺旋输送机不适宜输送块状及粘性的物料。
Copyright ? 2008-2019螺旋输送机厂家-新乡市大汉振动机械有限公司 All Rights Reserved 版权所有
网站备案号:豫ICP备09002479号-47

