
立式螺旋给料机适合垂直或大倾角输送粉状、颗粒状及非粘性干燥物料,接触原料部分均采用不锈钢制作,输送过程中原料完全不受污染,不带入任何异物,能使生产过程中实现全封闭自动化.
全国统一销售热线
免费获取报价

立式螺旋给料机又叫垂直螺旋给料机、垂直螺旋喂料机、垂直螺旋上料机,简称立式给料机,适合垂直或大倾角输送粉状、颗粒状及非粘性干燥物料。进料口与出料口之间的距离为2.5米-15米,每0.5米一档,可根据用户需要选用。在接触原料部分,均采用不锈钢制作,输送过程中原料完全不受污染,不带入任何异物,能使生产过程中实现全封闭自动化。

立式螺旋给料机适宜垂直或大倾斜角输送粉状、粒状、非粘性的容重≤1.3t/m³的干燥物料,如粮食,油麸、饲料、化工原料、水泥等。物料温度一般不能超过80℃,立式螺旋给料机由于机壳内流通面积较小,所以不适宜输送易变质、战象大、易结块的物料。

1、垂直或大倾角布置,电机安装在主机头部,占地面积小。
2、每小时可输送9-140立方粉状、颗粒状物料,输送高度为15米。
3、出料端设置有清扫装置,物料不易堵塞。
4、采用密封式设计,减少输送过程中的粉尘污染。
5、可以根据现场要求加装刹车式万向轮,可随意移动,固定给料机。
6、能同时进行于燥、加热、冷却、分选、粉碎、混合与除尘等工艺操作。

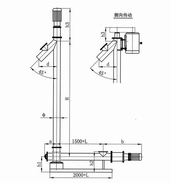
立式螺旋给料机是由驱动装置(电动机、减速器、联轴节)、螺旋、轴承、料槽、进料口、出料口等几部分组成的
立式螺旋给料机输送过程中,物料随着螺旋作高速旋转,由于离心力的作用,物料在料槽内形成若干同心圆层,物料的最外层紧贴槽壁。当螺旋转速不高时,物料与螺旋表面的摩擦力大于物料所受到的离心力,物料与螺旋一起作旋转运动,保持相对静态;当螺旋转速较高时,物料所受到的离心力大于物料与螺旋表面的摩擦力.物料向螺旋的外缘移动,对料槽壁产生压力并同时产生摩擦力.只有当这个摩擦力大于物料与螺旋表面之间的摩擦力以及物料重力的分力之和时,物料将与螺旋表面之间发生滑动并沿反方向的螺旋形轨迹上升,即物料被垂直部分的螺旋推送上升,从而达到垂直上升输送的目的;否则只是旋转而不能上升。将此时的转速称为临界转速,只有当输送机的转速大于临界转速时.物料才能实现向上输送。

1、立式螺旋给料机可按下面的经验公式进行计算 Q=8.007·D·3n (m3/n) 式中:Q=输送量(m3/n); D=螺旋直径(m); n=螺旋转速(r/min )。
2、立式螺旋给料机的电机功率按下面的经验公式进行计算 N=0.015258856Q·r·H (Kw) 式中:N=电机功率(Kw );Q=输送量(m3/n); r=物料容重(t/m3); H=进料口到出料口之间的距离(m )。
3、长度组合: 立式螺旋给料机高度(订货高度),是指进料口到出料口之间的距离,从2.5米起到15米止,0.5米一档,用户可以根据需要选用。
4、驱动装置: 立式螺旋给料机采用上驱动型式。电机安装在主机的头部,动力经皮带传送到主轴上,从而带动螺旋运转。
200型和250型设置单驱动型式,配置电机功率15Kw;315型设置单驱动和双驱动两种型式。当电机功率小于或等于15Kw时,采用单驱动型式,当电机功率大于15Kw时,则采用双驱动型式。强迫进料装置另配驱动装置在地面安装,应由生产厂统一设计,用户自行设计的,由用户自行负责。
Copyright ? 2008-2019螺旋输送机厂家-新乡市大汉振动机械有限公司 All Rights Reserved 版权所有
网站备案号:豫ICP备09002479号-47

