
转弯皮带输送机简称转弯皮带机可30°,45°,90°和180°输送物料,转弯皮带输送机输送带可根据输送物料的性质选择PVC、PU材质,除输送普通物料外,还可选择满足耐油、耐腐蚀、防静电等特殊物料输送的皮带材质.
全国统一销售热线
免费获取报价

转弯皮带输送机简称转弯皮带机,是输送流水线中使用比较广泛的一种设备,用于输送带与输送带之间弯角的连续或间歇运动来输送各种轻重不同的物料,常见的角度为30°,45°,90°和180°,能够满足各种转弯输送的工艺要求,转弯皮带输送机输送带可根据输送物料的性质选择PVC、PU材质,除输送普通物料外,还可选择满足耐油、耐腐蚀、防静电等特殊物料输送的皮带材质,转弯皮带输送机机架采用碳钢或不锈钢材质制作,驱动电机可根据用户需求安装在机架上面或者下面,有速度调节幽囚的用户还可选择变频调速或无级变速减速电机。


主要分为强制性的变向转弯和自然的变向转弯,前者是不改变原来设备上的主要部件,只在转弯的地方加入一个转角来实现,一般用于大转弯的状态下,后者是让输送带在自然状态下弯曲运行,这种方式相较比较简单,适合于小转弯状态下使用。


广泛应用在食品、饮料、电子、烟草等行业,我们可以选用较小直径的滚筒,使转角连接更加方便,解决过渡问题。本设备适用于各种流水作业的生产厂家,中小型物品的物流输送,动力系统采用变频调速系统,性能稳定、安全可靠、操作简单。线速度一般在30米/分钟。

1、相较普通输送机增加转弯功能,可满足各种输送工艺要求。
2、可在30-180度角度下转弯输送。
3、可以输送各种散料,也可输送各类纸箱、包装袋等单件重量不大的物料。
4、采用PVC、PU等材质,根据物料的不同可定制材质。
5、输送平稳,物料与输送带间没有相对运动,能够避免对输送物的损坏。
6、与其他输送机相比噪音较小,适合于工作环境要求比较安静的场合。

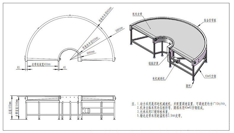
1、转弯皮带机结构形式有30度转弯皮带机、45度转弯皮带机、90度转弯皮带机、180度转弯皮带机, 能满足各种转弯输送的工艺要求。
2、扇形皮带加装专用的防跑偏滚轮 (轴承外加聚甲醛POM)或者在输送带的外侧高频焊接导向筋使输送带运行在专用的导轨中。
3、滚筒输送机之间易于衔接过滤,可用多条滚筒线及其它输送设备或专机组成复杂的物流输送系统以及分流合流系统,完成多方面的工艺需要。

转弯皮带输送机是由驱动装置提供驱动力,通过传动滚筒牵引输送带,输送带即是承载体也是牵引体,转弯装置采用截盘式长辊转向滚筒,确保输送机在平面转角运行中去除轴向力,达到胶带换向目的。皮带机转弯装置可实现0~180之间的任何转换角度。


Copyright ? 2008-2019螺旋输送机厂家-新乡市大汉振动机械有限公司 All Rights Reserved 版权所有
网站备案号:豫ICP备09002479号-47

